Eladó Téglalakás, Keszthely

#215800228

Eladó Téglalakás

128 millió Ft

Keszthely Kertváros , Tomaji sor
Alapterület:
74 m2
Szobák száma:
3
Állapot:
Új építésű
Építési mód:
Tégla
CSOK igényelhető
Kertkapcsolatos

Kérjen személyes bemutatást!
Adja meg adatait, és hogy mikor érne rá!

Az Adatkezelési tájékoztatót elolvastam és elfogadom.

Megfelelő időpontok

Hétköznap délelőtt
Hétköznap délután
Hétköznap este
Hétvégén délelőtt
Hétvégén délután
Hétvégén este
Kérés elküldése
Nincs
400 m2
Újszerű
Hőszivattyú
Vegyes
Bútorozatlan
Önálló kert
1
Összkomfort
Akadálymentesített
230 - 400 Volt
Van, saját vízórával
Nincs a közelben
Közműhálózatba bekötve

Keszthely kertváros 4c

Keszthely kertvárosban, településrész új felén a most épülő Panoráma lakóparkban kínálunk eladásra egy 74m2-es(+20nm garázs +23 nm terasz) ikerházfelet. Az épülő ingatlan egyszintes, terasz és kertkapcsolatos, saját garázzsal, nappalival és 2 szobával várja új tulajdonosát.

A területen jelenleg 6 db ilyen (hasonló méretű) ház épül, jelenleg még mind elérhető, így a gyorsaságával több választási lehetősége is van.

A ház jelenleg is épül, tervezett átadás 2026.Ősz

 

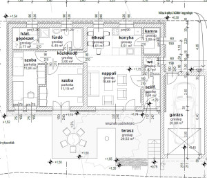
Elrendezés:

 

Előtér: 2.52m2

WC: 1.68m2

Kamra: 1.40m2

Konyha-étkező: 12.59m2

Nappali: 19.36m2

Szoba: 11.04m2

Szoba: 11.19m2

Házt.h: 3.69m2

Fürdő: 6.57m2

Közl: 3m2

Összesen: 73.89m2

+ Garázs: 20.16m2

+ Terasz: 23.15m2

 

A lakások a garázsfalnál érnek össze így semmilyen áthallás nem lesz.

Az ikerházfélhez saját, elkerített kb. 400m2 kertrész is tartozik.

A beruházó a mai legmodernebb technológiával, korszerű anyagok felhasználásával dolgozik.

Nagy hangsúlyt kapott a szigetelés és az energetika így az ingatlan rezsije várhatóan alacsony lesz.

A cég jónevű, régmúltú, leinformálható, stabil, a környéken több referenciával is rendelkezik.

Az ingatlan kulcsrakész, befejezett állapotban kerül átadásra, a vételár a konyhabútort és redőnyöket nem tartalmazza. A burkolatok és belső nyílászárók színe választható.

A szobák burkolata parketta, a többi helyiségé gres lap.

Fűtése: hőszivattyús fűtés, hűtése fan-coil-al történik.

Belmagasság: 2.7 méter

Természetesen komoly érdeklődés esetén a teljes dokumentáció, műszaki leírás elérhető.

Az ingatlan a jelenleg futó 3%-os hitelnek nem felel meg, de irodánk ingyenes segítséget nyújt a piac egyik vezető független hitelközpontjánál.

Megtekintése, terepbejárás csak előre egyeztetett időpontban lehetséges.

Hitelfelvétel esetén irodánk a piac egyik legjobb hitelközpontjánál ingyenes segítséget nyújt.

Kérem további információért és megtekintési időpontért hívja a hirdetésben szereplő valamelyik 20-as mobilszámot. Hitelfelvétel esetén irodánk

Várjuk hívását!

 

Helyiség Méret (m2)
Előtér 2.52
WC 1.68
Kamra, Éléskamra, Spájz 1.4
Konyha + étkező 12.59
Nappali 19.36
Háztartási helyiség 3.69
Közlekedő 3
Szoba 11.19
Szoba 11.04
Szoba 6.57
Garázs 20.16
Terasz 23.15

Beck Krisztián
 

Kérdése van?
Adja meg adatait és felhívjuk!

Az Adatkezelési tájékoztatót elolvastam és elfogadom.
Üzenet küldése